ADINA

  • 强度折减有限元法在尾矿坝稳定计算中的应用

    尾矿坝坝体稳定分析因尾矿材料与土的性质不同而使其研究具有特殊性 。 ADINA有限元计 算软件在分析计算岩土边坡稳定问题上有其独特优势, 比如结构的非线性分析 、 流固耦合计算等。文 中基于 ADINA软件, 应用强度折减有限元法对尾矿坝坝体稳定进行了计算分析, 得到坝体现状的塑 性区分布及抗滑稳定安全系数, 计算结果在软件中得到直观显示 。工程实例表明, 将强度折减有限元 法应用于尾矿坝的稳定计算中, 能有效地反映尾矿坝稳定性情况 。

    2024-12-04 iGeo

  • 某库岸滑坡稳定分析及治理措施研究

    从地质条件出发, 详细分析了滑坡的成因, 以大型的岩土工程数值分析软件( ADINA) 为研究 手段, 建立有限元计算模型, 用强度折减的方法分析了滑坡体在初始工况 、蓄水工况 、暴雨工况、水 位骤降工况和地震工况下的稳定情况, 根据滑坡的失稳情况, 在综合考虑的基础上, 提出了削坡减 载和地表排水相结合的治理措施, 计算结果表明, 治理措施是可行的, 研究结果对设计和施工具有 较大的参考价值.

    2024-12-04 iGeo

  • 基于强度折减有限元法的边坡失稳判据研究

    强度折减有限元稳定分析方法是目前应用及研究较多的一种分析方法 。 如何根据有限元计算结果来判别边坡稳定性, 是强度折减有限元稳定分析方法 的一个关键性问题。强度折减有限元法的失稳判据主要有 3 种:第一种以有限 元解的收敛性判定失稳状态 ;第二种根据计算域内最大节点位移与折减系数之 间关系曲线变化特征判定失稳状态;第 3 种通过计算域内塑性区是否贯通判定 失稳状态。利用 ADINA 有限元通用软件, 对二个不同的边坡算例进行强度折 减计算 ,分别采用 3 种失稳判据进行稳定性分析 , 对 3 种失稳判据的适用性 、3 者之间的一致性 、各自的适用范围进行了研究。研究表明, 对于均质边坡 , 3 种 失稳判据存在较好的一致性,但是对于非均质边坡, 塑性区贯通判据在应用范 围上存在局限性 。

    2024-12-04 iGeo

  • 土质边坡稳定安全系数计算方法研究

    边坡稳定安全系数是研究边坡稳定性定量评价的主要依据之一,其计算正确性对于预防滑坡具有 重要意义。首先通过泰勒分析法,找出不同坡度下土坡体最危险滑动面,运用瑞典圆弧条分法计算土坡的稳定 安全系数; 然后运用有限元重度增加法通过 ADINA 软件求出坡体的安全系数; 最后通过两种不同方法的计算结 果进行对比,再结合工程实例,通过 ADINA 分析结果与前人分析所得结果进行对比,表明了基于 ADINA 有限 元计算软件对于求解边坡稳定安全系数的有效性。

    2024-12-04 iGeo

  • 基于强度折减技术的边坡稳定性及其影响因素分析

    为修正边坡稳定性分析中极限平衡法的缺点, 引入基于强度折减技术的有限单元法。 分别介绍了有限单 元理论与强度折减法技术。 失稳判据是分析边坡稳定性的关键问题, 目前强度折减有限元法中主要有三种判据, 同时得到边坡安全系数。 通过算例, 与传统极限平衡法计算结果相比较, 结果表明基于强度折减技术的有限元法 分析边坡稳定性及其影响因素敏感性是可行的, 计算精度满足工程要求, 为边坡的支护治理设计提供重要依据。

    2024-12-04 iGeo

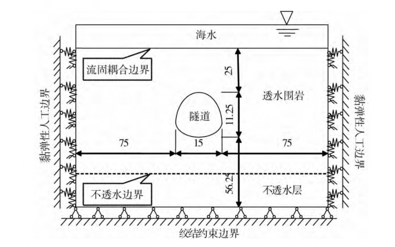
  • 渗流和双向地震下跨海减震隧道的稳定分析

    为了研究渗流和双向地震作用下跨海减震隧道工程结构的稳定性,采用动力有限元静力强度折减法,并利用 ADINA 软件分别建立了结构场和流体场分析模型。考虑黏弹性人工边界、双向地震和渗流的影响,研究海水深度、覆岩厚度和 渗透系数对设置减震层跨海隧道动力稳定安全系数的影响以及塑性区的变化规律。研究结果表明: 渗流和双向地震作用 下,跨海减震隧道结构的塑性区最先出现在隧道结构的两侧拱脚和拱肩周边部位,拱顶部位没有出现塑形区; 覆岩厚度越 厚,设置减震层对跨海隧道在地震作用下的安全系数提高越少; 海水深度和渗透系数的变化对设置减震层跨海隧道结构的 安全系数影响不大; 覆岩厚度的变化对跨海隧道在渗流和地震作用下安全系数的影响大于海水深度和渗透系数的影响。

    2024-12-04 iGeo

  • 基于Adina软件的大型边坡变形与稳定性分析

    边坡失稳是一种严重的地质灾害,在详细的地质调查、分析基础上,对枇杷园边坡的破 坏模式进行分析,利用 Adina 软件对边坡进行有限元计算,分析边坡的应力分布,根据强度折 减法理论,对边坡稳定性安全系数进行计算,研究成果表明,边坡可能沿软弱夹层滑动,对边坡 采取以抗滑桩加固措施进行了有限元计算,验证加固方法的有效性。

    2024-12-04 iGeo

  • 基于强度折减法的库岸滑坡三维有限元分析

    The genetic mechanism and evolvement process of the reservoir bank landslide were discussed detailedly based onengineering exploration and analyzing environmental geological conditions. And some main factors effecting stability of the landslidewere analyzed emphatically. Through building a 3D FEM model of landslide, the stable situations of the landslide under varioussituations were considered based on the strength reduction method. The result shows that the landslide is steady under the naturalsituation. The front edge of the landslide will be drowned out when the reservoir retains water normally; the safety factor reduces andcan’t meet the requirements of norms. The landslide tends to be more dangerous under rainfall infiltration and rapid drawdown of thereservoir water level. And the landslide will be instable when water storage situation and earthquake situation were considered at thesame time. According to the preceding analysis, the treatment measures of cutting slope and reducing load were presented. Thelandslide is steady under various conditions after being controlled. The relevant conclusions and methods proposed take a good effectin landslide treatment.

    2024-12-04 iGeo

储罐的动特性分析