ADINA

  • 基于Drucker-Prager Cap模型的装配式混凝土箱涵节段滞回性能研究

    在利用有限元软件 ADINA 对预制钢筋混凝土箱涵结构进行滞回性能分析中,计算往往比较难收敛,而 ADINA 中提供的基于 Drucker-Prager 屈服条件、拉伸截断、帽盖硬化等准则的 Drucker-Prager Cap 模型,在对混凝土进行数 值分析时收敛容易,且计算速度较快,并通过比较,发现采用基于该模型建立的数值模型计算得到的滞回曲线与试 验得到的结果吻合程度较高,模拟结果较为准确。这一成果可以通过数值模拟的方式获得预制钢筋混凝土箱涵的 滞回曲线与相关数据,可应用于预制箱涵节段抗震计算和设计。

    2024-12-04 iGeo

  • 水域沉管隧道地震响应影响因素分析

    为研究沉管隧道地震响应的影响因素,本文进行了沉管隧道振动台试验和 ADINA 有限元软件模拟 分析。沉管隧道试验模型材料主要为微粒混凝土,模型缩尺比为 1/30,采用层叠剪切箱装填砂土构成场地。 沉管隧道数值分析模型采用粘弹性人工边界和等效荷载输入方法。综合两种方法的分析结果表明:在同一深 度土层,柔性接头沉管隧道的土层加速度放大系数小于刚性接头沉管隧道;当土层发生液化时,其加速度 放大系数小于 1。当沉管隧道接头剪切刚度从 G 减小为 0.1G 和 0.01G 时,隧道截面剪应力减小了 20%和 33%,截面轴应力峰值最大值减小了 16%和 30%,截面剪应变峰值分别增加了 60%和 140%。与无上覆水 的场地相比,有上覆水的场地加速度放大系数更小,这是由于水的存在加大了土层表面的阻尼。在 P 波作 用下,上覆水水深为 10m、20m、30m、40m 的沉管隧道截面剪应力峰值、轴向应力峰值最大值分别以 3%~5% 和 30%~40%的幅度增加,沉管隧道截面应变峰值最大值以 12%~17%的幅度增加。这些结果可供沉管隧道 设计参考。

    2024-12-04 iGeo

  • 特长公路隧道主洞与配电室交叉结构稳定性分析

    因空间交叉结构受力复杂性而导致的长大公路隧道大变形和支护结构失稳的事故屡见不 鲜。文章介绍为确保隧道交叉结构受力的安全与合理,以宝塔山隧道为依托工程,采用喷射聚丙烯纤维混凝 土作为支护手段,运用 ADINA 有限元软件建立数值计算模型,对隧道交叉结构的围岩变形、支护结构与围岩 的接触应力、支护结构内力进行分析。研究表明: 拱顶、仰拱的最大变形量出现在交叉部位,隧道主洞有接触 应力集中现象,拱腰附近安全系数最小。

    2024-12-04 iGeo

  • 行车荷载作用下水泥混凝土路面板角隅脱空数值仿真分析

    为了研究行车荷载作用下,水泥混凝土路面板角隅不同脱空状态对路面板面层的影响,通过有限元软件 ADINA,考虑 真实轮胎荷载作用,针对轮胎在不同轴载作用下、不同脱空面积以及非脱空状态下建立的 9 块水泥混凝土路面板有限元分析模 型,分析在不同工况作用下的脱空状态(角隅脱空)对路面结构作用力的影响。结果表明:通过对不同脱空状态仿真数据的分析, 得出在角隅不脱空和角隅脱空的情况下,当路面基层脱空时,角隅不脱空处面层的弯沉和弯拉应力明显大于角隅脱空面层的弯 沉和弯拉应力,脱空区域上的面层最大弯沉和最大弯拉应力是非脱空时的 1.13 倍和 1.36 倍,可以看出脱空区对于路面结构非 常不利;对于不同脱空面积下的角隅脱空,随着脱空面积的增大,脱空区域内路面板面层的动力响应显著增大;对于相同脱空面 积下且不同轴载的角隅脱空状态下,随着轴载的逐渐增大,脱空区域内路面板面层的弯沉和弯拉应力应逐渐增大。因此采取交 通管制、及时注浆或者灌浆和降低轴载等补救措施可以有效的减缓含水脱空区域水泥混凝土路面板结构的破坏。

    2024-12-04 iGeo

  • 预制节段拼装桥墩受力性能分析与模拟

    预制节段桥墩通过预应力筋施加的后张预应力获得自复位能力,通过耗能钢筋增加桥墩的耗能能力,在水 平荷载作用下,桥墩各节段在接缝处会张开、闭合,具有摇摆及自复位结构的特点。根据现有的研究结果,结构 的摇摆在其工作过程中可以有效降低地震作用,进而减小设计时结构的延性需求。在地震作用下,可以减小破坏, 节约造价。本文参考国内外相关规范和已有研究成果,划分了预制节段桥墩的性能状态,提出了预制节段桥墩截 面设计方法。为了具体说明设计步骤,对算例桥墩进行了设计。最后,利用有限元分析软件 ADINA 建立了实体 模型,进行验证。研究表明:该设计方法简明合理,验证结果与预期相近,可以为以后此类桥墩的设计提供参考。

    2024-12-04 iGeo

  • 薄壁空心墩日照实测温度场及仿真分析

    高墩大跨桥梁结构常用的空心薄壁墩,受不均匀日照影响会产生不均匀温度场,在建造期或 使用期甚至会导致混凝土开裂,对石门特大桥 25# 墩进行了实测温度场并基于傅利叶导热定律、太阳物理学 等相关理论,建立薄壁空心墩温度场的热边界条件。根据相关文献确定有限元热分析的环境参数与热工参 数,运用 ADINA 软件模拟日照下薄壁空心墩的瞬态温度场分布并与实测值进行对比分析验证,得到沿壁厚 方向最不利温度梯度。研究表明: 桥墩受日照影响最大的是中午 14: 00 左右受日照直射的空心墩表面,由于 混凝土导热性能差,内表面峰值温度相对于外表面有滞后现象,会导致较大的温差效应; 截面角隅处对于温 度变化最为敏感,由于温差引起得温度应力可能对薄壁空心墩结构存在着开裂风险; 环境与热工参数选取合 理,采用有限元软件 ADINA 进行数值模拟具有较高精度。

    2024-12-04 iGeo

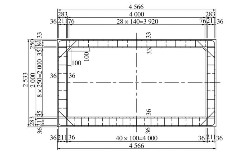
  • 预制拼装综合管廊节段滞回性能有限元分析

    提出了一种预制装配式矩形钢筋混凝土管廊节段三维恢复力数值模型,采用非协调参数 Drucker-Prager 平面 Cap 模型 模拟混凝土性质,结合自定义的黏结滑移单元,并基于 ADINA 软件建立了三维钢筋与混凝土分离式模型。在试验荷载设计时,结 合反应位移法物理概念和理论基础,将管廊在土体中实际受力情况和土体对管廊的约束作用分别进行了简化处理。利用预制装配 式管廊节段的低周反复荷载试验与数值模拟结果对比,分析了试件的滞回曲线、骨架曲线、耗能能力、残余位移、延性等抗震性能 指标,从而验证笔者的数值模型合理性和可靠性;指出了顶板与侧壁连接处的倒“L”形节点区为地震破坏薄弱区。以上研究成果 可为进一步研究预制装配式管廊节段的地震灾变行为研究提供参考。

    2024-12-04 iGeo

  • 寒潮作用对混凝土T梁的影响

    T 形梁桥腹板裂缝是该类桥梁的典型病害,其中温度荷载作用是混凝土开裂的重要因素之一。气温骤降对混凝 土结构受力状态有显著的影响。本文通过大型有限元分析软件 ADINA 建立热 - 结构有限元分析模型,考虑不同降温速 率、不同环境风速、不同降温量因素,对 T 梁温度场及应力分布的影响。研究表明,降温速率及环境风速对结构影响较 小,环境降温量对结构影响较大; 由环境气温降低,使 T 梁跨中区域腹板产生相当的拉应力,增大了 T 梁腹板竖向开裂的风险。

    2024-12-04 iGeo

储罐的动特性分析